Anasayfa
Kurumsal
Hakkımızda
Misyonumuz
Vizyonumuz
Hizmetler
Projeler
Blog
İletişim
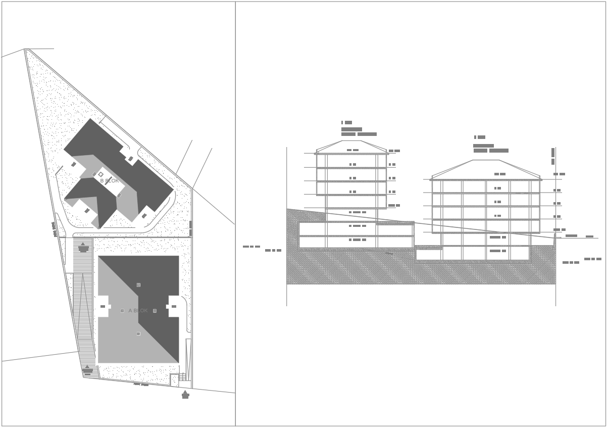
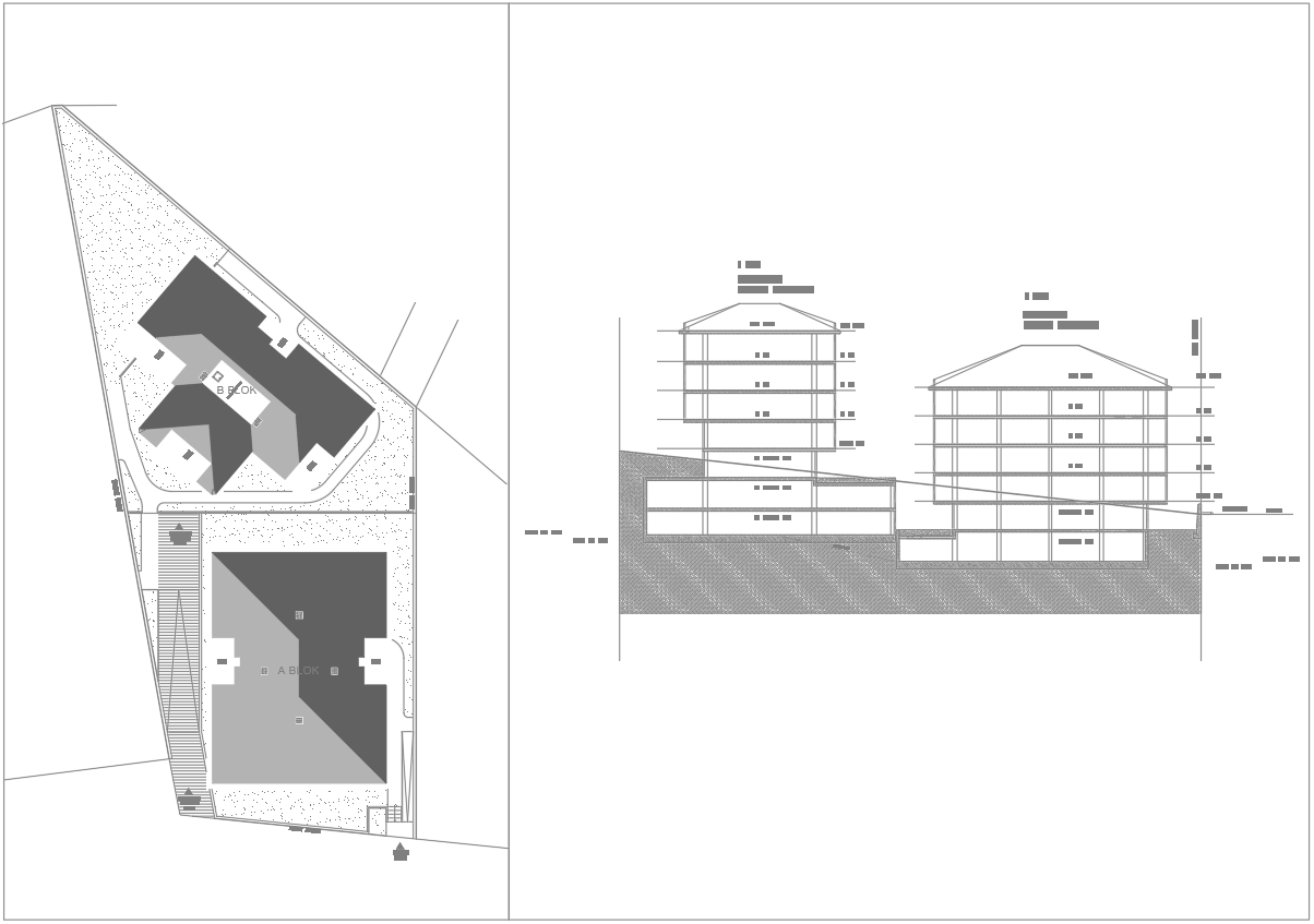
Altunizade Konut Kentsel Dönüşüm
Anasayfa
/
Projeler
/
Altunizade Konut Kentsel Dönüşüm
Kategoriler
Projelerimiz
Tüm Projeler
2 Blok, 43 bağımsız bölümden oluşan konut kentsel dönüşüm projesinin kuvvetli akım, zayıf akım uygulama projeleri hazırlanmıştır.
Üsküdar / İstanbul
Yıl: 2025
Alan: 6.700m²
Kurulu Güç: 330kVA
KOLAY ERİŞİM
KOLAY ERİŞİM
KAYIT OL
TIKLA ARA
WHATSAPP
MAİL GÖNDER
İLETİŞİM FORMU